
The site is part of the Noya 2 development master plan and is close to the surrounding development of Yas Acres, and has proximity to Yas Mall and the many leisure attractions on Yas Island.
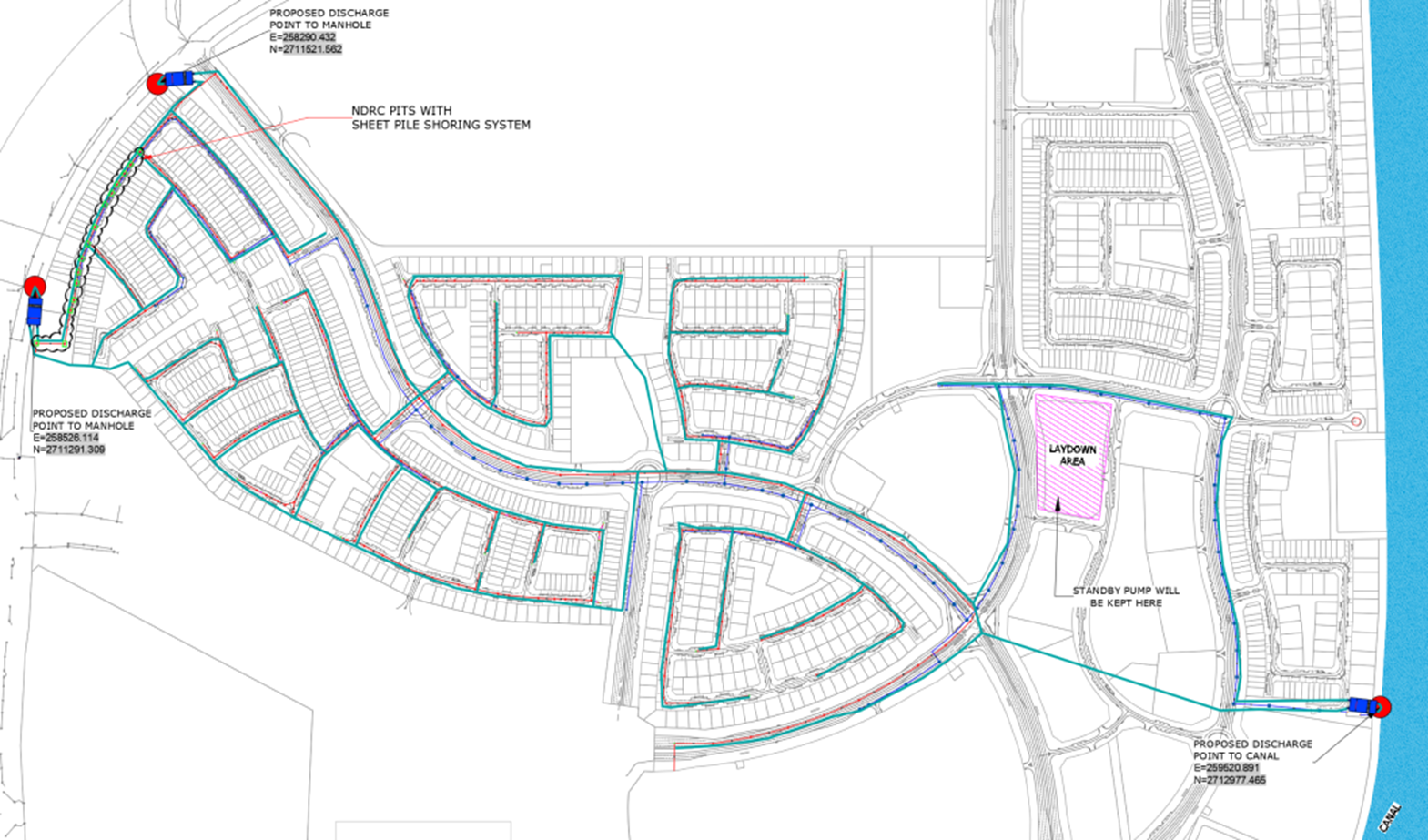
The proposed Noya 2 project is strategically located on Yas Island. The dewatering project is for the proposed construction of stormwater and sewer network. The estimated dewatering works will involve up to 10km of combined pipelines and manholes, with excavation depth ranging from 6m to 12m from existing ground level. The project also involves construction of modern residential, such as townhouses and villas, as well as non-residential structures.
The contract work involves dewatering an excavation for a multi-storey basement of a proposed mixed development. The dewatering has been operational for over 17 years. The excavation is roughly a square shape with a plan size of 353 m by 350 m with a total perimeter length of approximately 1,432 m. Dewatering design is for a maximum formation level of -15.7 m DMD. Side support is by contiguous piles.
WJ drilled and installed over 80 deepwells on the perimeter and across the site, then later reduced after completion of some buildings.


WJ’s design proposal is to dewater the excavations using combination of deepwells and trenching/sumping dewatering systems. The dewatering design was based on successfully completed dewatering jobs with similar scope of work adjacent to the new development.
The client requirement is to dewater every up to 250Lm of excavations. For excavations up to 6 meters deep, the proposed number of wells is 12, while for excavations up to 12 meters deep, 14 wells are proposed. The wells are drilled and installed 2m away from the pipe centerline to facilitate easy connection to the trenches as and when required. The system will be equipped with submersible pumps with standby units, power supply system, control panels with suitable alarm system and 24hr on-site monitoring team.
The dewatering wells were drilled using two WJ-owned drilling rig since the main contractor is faced delays on executing the job. WJ efficiently managed the dewatering installation based on the main contractors requirements.
A dedicated site team of engineers and technicians have been operating up to 50 pumps at any one-time, multiple generators, and other equipment on a 24/7 basis. The work also includes installation and management of booster stations. The combined dewatering flow rate encountered is approximately 20 l/s. Since dewatering is a critical path item, it was essential that visibility of the system performance was maintained at all times and shared across the project stakeholders.
WJ have completed many projects in Middle East and globally. Click on the links below to learn more about what we do.
Are you ready to see what else our vision can bring to your projects? Speak to our team of groundwater experts today!